1. Электроника
  2. Компьютеры
  3. Программное обеспечение
  4. Наука и образование

ОНЛАЙН - КУРС-REVIT - ПРОЕКТ ОДНОСЕМЕЙНОГО ДОМА



#товара: 7427535811

Все товары продавца: CGWisdom_pl

Состояние Новый

Счет-фактура Я выставляю счет-фактуру НДС

Название КУРС-REVIT LT - ПРОЕКТ ДОМА

Производитель другой (CGwisdom)

Тип ОУР

Версия продукта электронная (код активации)

Языковая версия польша

Срок действия лицензии бессрочная лицензия

Количество постов Один

Количество 995 штук

  • Количество

  • Проблемы? Сомнения? Вопросы? Задайте вопрос!

    Kurs - Revit - Wykonanie projektu domu jednorodzinnego od podstaw

    Język: Polski

    Czas trwania kursu: 4 godziny

    Użyte programy: Revit LT 2016

    Pliki udostępniane po zakupie kursu: Lekcje w formie filmów wideo - tutoriali, Podkłady DWG, Finalne pliki projektu w formacie RVT

    W jakiej postaci jest kurs?

    Kurs dostępny jest tylko w formie elektronicznej w postaci plików wideo. Kurs można przerabiać online na serwisie www.cgwisdom.pl lub pobrać na swój komputer. Więcej informacji na temat realizacji zamówienia znajdziecie Państwo poniżej.

    Opis kursu

    Z kursu dowiecie się jak stworzyć pełny wirtualny model domu jednorodzinnego, jego dokumentację, oraz jak przygotować go do prezentacji i wydruku. Całośc kursu składa się z 24 części, które zostały nagrane tak, by nawet początkujący mógł się odnaleźć w programie - pierwsze dwie części to omówienie interfejsu, oraz wytłumaczenie co kryje się za pojęciami Building Information Modeling.

    Zobaczycie jak w zaledwie kilka godzin zbudować geometrię domu jednorodzinnego, od fundamentów, aż po dach. Jak nadawać i edytować materiały w warstwach elementów konstrukcyjnych, jak w bardzo szybki sposób dodawać oznaczenia do stolarki okiennej i drzwiowej, tworzyć wymiary i kolorowe schematy pomieszczeń wraz z legendami. Jak tworzyć teren otaczjący budynek, elementy otoczenia, detal szczegółu, widoki aksonometryczne, oraz jak ustawić grafikę i wyrednerować widok perspektywiczny przy użyciu Autodesk 360 Cloud.

    W plikach dodatkowych, które dostępne są po zakupie oprócz materiałów video znajdą się podkłady w postaci plików DWG, oraz pliki Revita odpowiadające poszczególnym częściom kursu.

    Dla kogo jest ten kurs?

    Kurs przeznaczony jest dla osób, które chcą samodzielnie wykonywać projekty z wykorzystaniem programu Revit. Kurs stworzony jest w taki sposób, aby mogła przerobić go nawet początkująca osoba.

    W kursie zostały poruszone takie tematy jak:

    1.Wstęp

    • omówienie okna startowego programu Autodesk Revit Architecture
    • szablony, projekty, rodziny
    • omówienie środowiska pracy programu
    • dostosowanie interfejsu
    • omówienie dostępnych narzędzi
    • ustawienie skali i  opcji wyświetlania widoków

    2.  BIM i  projekt w programie Revit

    • BIM
    • czym jest projekt w Revit Architecture
    • sposoby rozpoczynania pracy

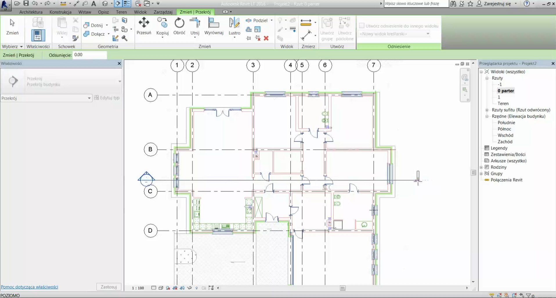
    3. Początek pracy z projektem

    • ustawienie jednostek
    • ustawienie poziomów kondygnacji
    • import plików zewnętrznych
    • ustawienie osi konstrukcyjnych
    • wyrównywanie osi do środka ścian z podkładu
    • ustawienie przekrojów
    • tworzenie segmentów
    • ustawienie zakresu widoku
    • ustawienie elewacji
    • zapisywanie projektu

    4.  Wpisywanie informacji o projekcie

    • Wpisywanie informacji, wyświetlanie i modyfikacja

    5.1. Ściany na parterze

    • rodzaje i metody rysowania ścian
    • ściany zewnętrzne
    • rysowanie ścian, zmiana strony z zewnętrzną na wewnętrzną, zmiana poziomu szczegółowości
    • ściany wewnętrzne
    • wybór i modyfikacja ścian
    • sposoby łączenia ścian
    • edycja profilu ściany
    • dodawanie boniowania

    5.2.  Ściany kurtynowe i połacie przeszklone

    • tworzenie ścian kurtynowych
    • tworzenie połaci przeszklonych
    • dodawanie podziałów i wprowadzanie szprosów na ścianie kurtynowej
    • tworzenie drzwi w panelu ściany kurtynowej

    6. Ściany w części podziemnej

    • ustawienie podrysu
    • ściany fundamentowe
    • rysowanie płaszczyzn odniesienia
    • ściany piwnicy

    7.  Fundamenty

    • tworzenie ławy fundamentowej
    • powielanie typu
    • tworzenie płyty fundamentowej

    8. Stropy na 0parter

    • metody rysowania stropu
    • rodzaje stropów
    • edycja typu stropu
    • łączenie geometrii
    • strop nad garażem
    • tworzenie otworu w stropie
    • dodawanie podłogi w pokojach

    9.  strop na poddaszu

    • strop na poddaszu

    10.Schody

    • wybór rodzaju schodów
    • ustalenie właściwości elementu i typu
    • tworzenie schodów
    • tworzenie poręczy na poziomie 0

    11. Dach

    • rodzaje dachów
    • dach wg podrysu
    • dołączanie ścian do dachu
    • podbicie, wiatrownica, rynna

    12.  Kominy

    • tworzenie ścian kominów
    • zamknięcia górne kominów (12cm - domyślny)
    • gzyms
    • otwory w kominie

    13. Drzwi

    • wczytywanie rodzin drzwi
    • edycja materiałów
    • umieszczanie drzwi - prawa, lewa strona, wnętrze, zewnętrze

    14. Okna

    • wczytywanie rodzin okien
    • wybór okien
    • umieszczanie okien

    15. Sufit i oświetlenie

    • w łazience tworzymy sufit
    • wstawianie oświetlenia

    16. Czyszczenie modelu

    • łączenie geometrii elementów konstrukcyjnych
    • zmiana połączenia ścian

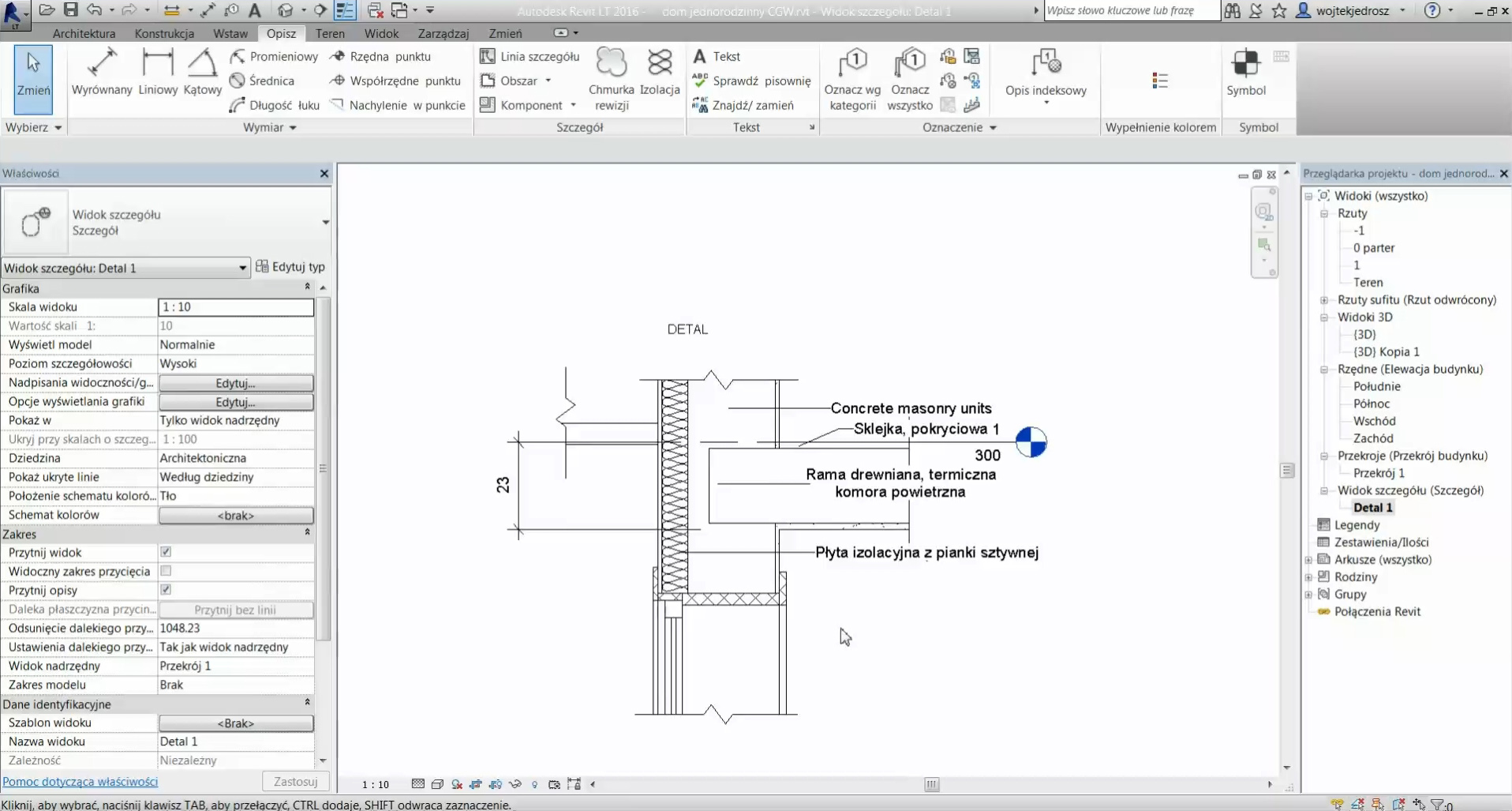
    17. Detal

    • omówienie idei detalu w programie Revit
    • omówienie dostępnych funkcji
    • nadawanie materiałów
    • tworzenie detalu rysunkowego
    • dodawanie komponentów szczegółu i  powtarzalnych komponentów szczegółu

    18. Komponenty

    • dodawanie komponentów zabudowy i komponentów hydraulicznych do łazienki

    19. Pomieszczenia, legendy, zestawienia pomieszczeń

    • tworzenie pomieszczeń
    • opisywanie pomieszczeń
    • tworzenie kolorowego schematu pomieszczeń
    • dodawanie legendy
    • tworzenie zestawienia pomieszczeń

    20. Tagowanie i tworzenie zestawienia okien

    • tagowanie drzwi i okien
    • modyfikacja tagu
    • zestawienie stolarki okiennej

    21.  Wymiarowanie

    • tworzenie wymiarów na podstawie odniesień indywidualnych
    • tworzenie wymiarów na podstawie całych ścian

    22. Teren i komponenty terenu

    • tworzenie terenu
    • ustawianie wysokości punktów
    • zmiana materiałów
    • dzielenie terenu - tworzenie podjazdów
    • dodawanie komponentów terenu
    • tworzenie ogrodzenia

    23. Opcje wyświetlania grafiki, kamera i rendering

    • nadawanie materiałów wykończeniowych
    • tworzenie widoku kamery
    • opcje ustawienia kamery
    • kontrola widoku - styl wyświetlania, ustawienia słońca, cieniowanie, definicja położenia projektu
    • opcje wyświetlania grafiki
    • opcje grafiki renderingu online
    • rendering dzięki usłudze autodesk 360 cloud

    24. Przygotowanie arkuszy do wydruku

    • tworzenie arkuszy
    • sposoby modyfikacji arkuszy i opisywanie
    • aktywowanie i dezaktywowanie widoków
    • umieszczanie i skalowanie rysunków na arkuszu
    • druk oraz eksport Arkuszy

    FILM REKLAMOWY

    Zachęcamy do obejrzenia filmu reklamowego dostępnego na serwisie YouTube po wpisaniu:

    "KURS - REVIT LT 2016 - JAK WYKONAC PROJEKT DOMU JEDNORODZINNEGO - CG WISDOM"

    Lista filmów w kursie

    • 01 - Interfejs
    • 02 - Czym jest BIM
    • 03 - Początek pracy
    • 04 - Wpisywanie informacji o projekcie.
    • 05.1 - Ściany zewnętrzne
    • 05.2 - Ściany wewnętrzne i boniowanie.
    • 05.3 - Ściana kurtynowa.
    • 06 - Ściany -1
    • 07 - Fundamenty
    • 08 - Strop - parter
    • 09 - Strop - poddasze
    • 10 - Schody
    • 11 - Dach
    • 12 - Kominy
    • 13 - Drzwi
    • 14 - Okna
    • 15 - Sufit i oświetlenie.
    • 16 - Czyszczenie modelu
    • 17 - Tworzenie detalu.
    • 18 - Wstawianie komponentów.
    • 19 - Pomieszczenia, legendy, zestawienie pomieszczeń.
    • 20 - Tagowanie, zestawienie Okien.
    • 21 - Wymiary
    • 22 - Teren
    • 23 - Opcje grafiki, kamera, rendering
    • 24 - Przygotowanie arkuszy do wydruku

    Оформление заказа

    • После приобретения и оплаты курса через allegro - PayU, данные для счет получает автоматически по электронной почте через несколько минут после оплаты.
    • В случае оплаты иным способом чем PayU, например, банковский перевод традиционный время средства курса может увеличиться до 24 часов от момента получения денег. Рекомендуем оплаты через PayU, что значительно сократит время ожидания.
    • Чтобы скачать данный курс необходимо войти на сайт www.cgwisdom.pl, а затем войти в свою аккаунт с помощью данных, полученных на ваш адрес электронной почты. Курс будет доступен в разделе "Мои курсы".
    • Курс можно будет смотреть непосредственно на странице сайта www.cgwisdom.pl или скачать его на свой компьютер.
    • Курс будет доступен без ограничений по времени.
    • Курс доступен только в электронном виде.
    • Выставляем счета-Фактуры НДС 23%. Если при оформлении заказа на сайте установлен опция "счет-Фактура", это говорит, что она автоматически будет скачать с панели клиента веб-cgwisdom ru с закладки - История заказов.

    Галерея курса

    Корзина 0